Libellules
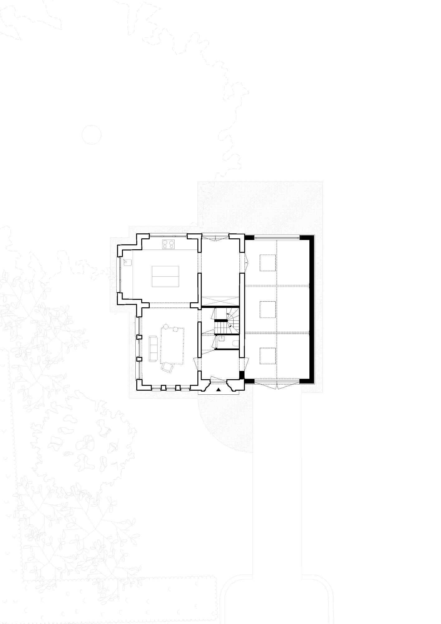
Extension of a house
Boitsfort
2025
This house sits at the edge of the Forêt de Soignes. The project reorganises the interior and adds a timber cladding extension with a zinc roof that continues the existing volume, improving the relationship with the garden while keeping the intervention minimal.
The remarkable tree on site is fully preserved; all structural works are confined to the garage footprint to protect its root system.
Client : Private. Structure : JZH&Partners. Energy : Earth&Bee. Contractor : MGA Concept. Photography : Séverin Malaud


















